























BRECKENRIDGE
Two - Story
Bedrooms: 4
Bathrooms: 2.5
Garage: Yes
Square Footage: 3,921 Sqft
$518,900
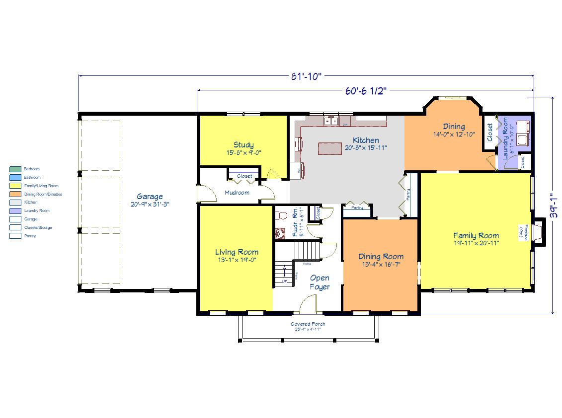
Plan Description
This model has a stately appearance with a stone front. The arched eyebrow window and dormers add to the stately appearance of this home. The 3 car garage is side loaded to add elegance. Upon entering the front door, which is graced with a pediment and pilasters, you are welcomed into a two story foyer with a split staircase with abundant railing. There is a front formal living room as well as a formal dining room. The kitchen is large with abundant cabinetry, a large island and two builders pantries. The dinette is large with a walk out bay that has two windows and a patio door. The laundry room is quite sizable and is located off of the dinette area for your convenience. There is a study in the rear adjacent to the garage and mudroom area. The family room has a cathedral ceiling and an optional fireplace. The split stairs take you to the second floor where you will find an exceptionally large master suite. The master bedroom has a cathedral ceiling and a walk in closet. There is a large sitting area and a walk out double window dormer to enjoy. The master bathroom has a double bowl sink, linen closet, stand alone shower and a whirlpool tub. There are a total of 4 bedrooms and 2 ½ baths.
