























PINECREST
Two-Story Home
Bedrooms: 3
Bathrooms: 2.5
Garage : Yes
Square Footage: 2,537 Sqft
$379,500
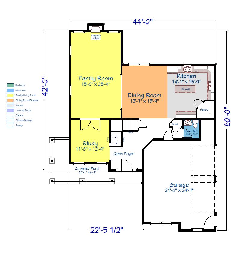
Plan Description
This home has old world style curb appeal with its unique hip roof lines, abundant reverse gables and prairie/mission style windows. The unique wrap around porch has old time stone and tapered craftsman styled posts. The over sized two-car garage has a unique layout with abundant space. Upon entering the two-story open foyer you are greeted immediately with a unique floor plan on both the first and second floors. This home is perfect for entertaining with its open concept floor plan. The formal study is just off of the foyer with double doors that lead you into the large family room with an optional fireplace. The dining room and kitchen area provide for family interaction with an island, large walk pantry and desk area. There is also a powder room and coat closet between the garage and the main family gathering area. The second floor of this home will not disappoint you. There are three bedrooms with an office or you could use this as a fourth bedroom or nursery adjacent to the master bedroom depending upon your families needs. All three bedrooms have a walk in closet. The master suite has abundant space with a large master bath equipped with a whirlpool bath, double bowl vanity, and enormous walk in closet with a separate area for the commode for added privacy. The laundry room is also located on the second floor for your family’s convenience. There are a total of three optional four bedrooms and 2 baths.
