



















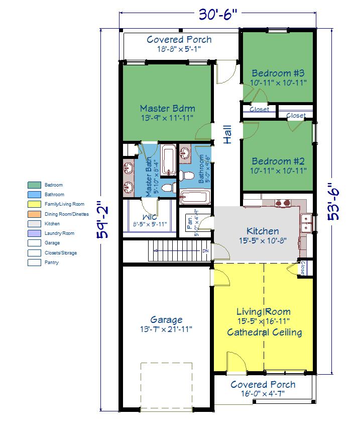
The Greenville
Farmhouse Ranch
Bedrooms: 3
Bathrooms: 2
Garage: Yes
Square Footage: 1,302 Sqft
$239,900
Plan Description
Discover the charm of our Farmhouse Rancher Series, where modern farmhouse style meets functional design. The striking rooflines and classic vertical siding create a warm and inviting exterior with timeless appeal. Step inside, and you’re welcomed into a spacious great room with soaring cathedral ceilings, setting the stage for open, airy living. The dining area flows effortlessly into the great room, making it perfect for entertaining or cozy family gatherings. The kitchen’s unique layout features an adjoining dining area and a large builder’s pantry, providing
plenty of storage and convenience. A thoughtfully designed master suite offers a private retreat with a generous walk-in closet and a master bath featuring a double vanity and two windows that bring in natural light while overlooking the covered back porch. This home includes three bedrooms and two full baths, blending comfort and style for everyday living. For added convenience, a one-car front-loading garage makes this design ideal for narrow lots, providing easy access without sacrificing space or functionality.
