








Gatlinburg_Front_Right
Gatlinburg_Front
Gatlinburg_Aireal
Gatlinburg_Front_Left
Gatlinburg_Rear_Left
Gatlinburg_Rear_RIght
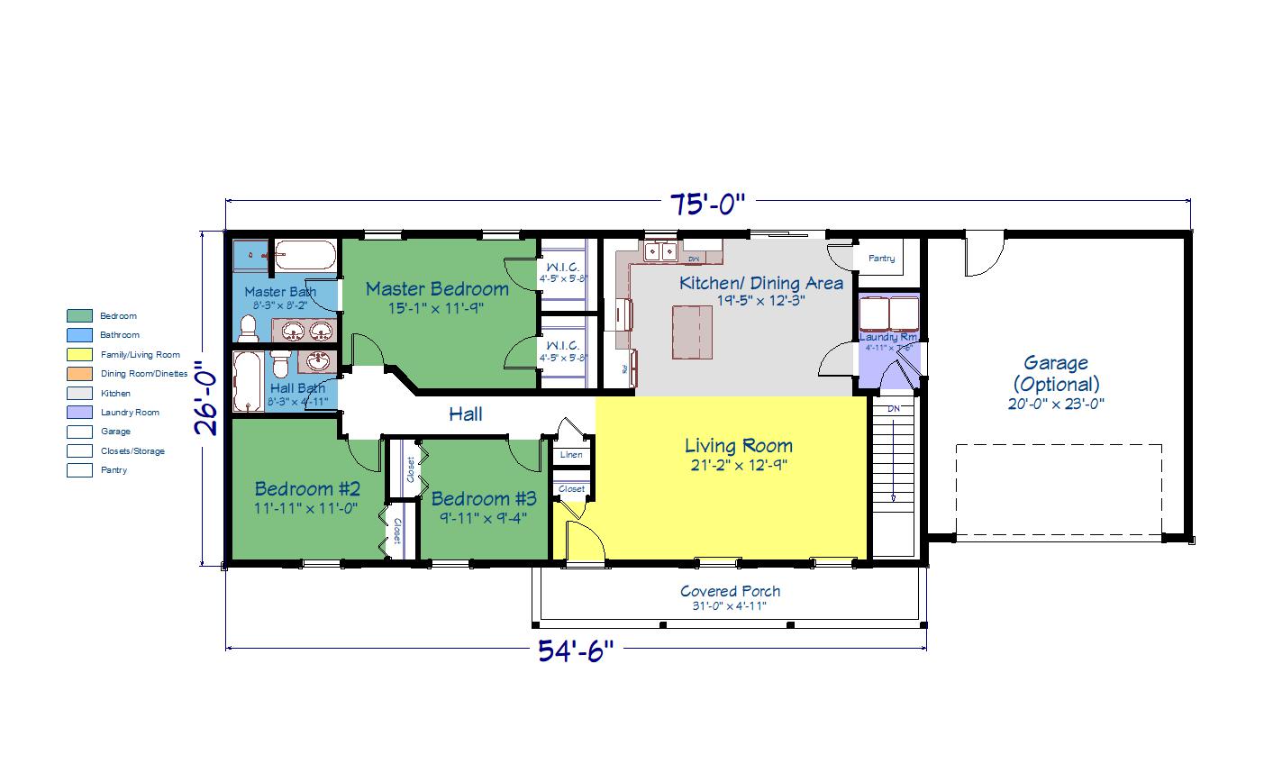
Gatlinburg_Floor_Plan(1)
Gaitlinburg_Kitchen_1
Gaitlinburg_Kitchen_2









GATLINBURG
Rancher
Bedrooms: 3
Bathrooms: 2
Garage: Optional
Square Footage :1,415 Sqft
$239,000
Plan Description
This ranch home has a country style with a front porch and stone accents and three dormers. The porch welcomes you into the grand family room that has ample space for your family. This open floor plan leads you into the kitchen which has a dining area, pantry and laundry just off of the kitchen for your convenience. The master bedroom has his and hers walk in closets and a master bath with a double bowl sink. There are a total of 3 bedrooms and 2 baths. There is also the option to upgrade to a 2 car garage.
