



























KINGSTON
Two - Story
Bedrooms: 4
Bathrooms: 2.5
Garage: Yes
Square Footage: 3,591 Sqft
$437,100
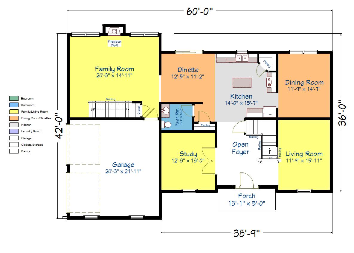
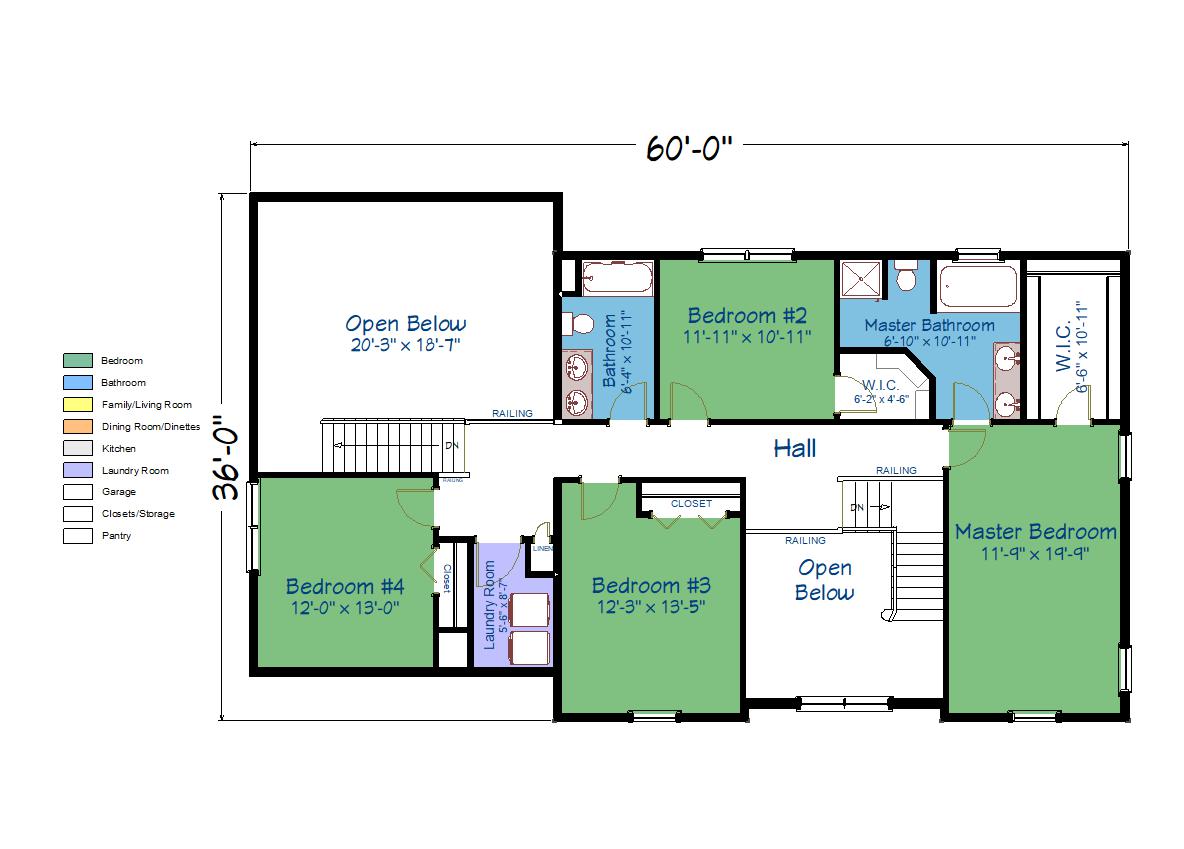
Plan Description
This beautiful 2 story colonial home has stately curb appeal with stone and three reverse gables and hip roof. The 2 car garage is side loaded for added appeal. The pediment and pilasters grace the front door and invite you in to the 2 story open foyer. Once inside, there is a formal study with French doors gracing the open foyer. There is a front formal living room as well, with open railing looking into the stairway. The kitchen is spacious, with a unique layout that has a corner pantry. The kitchen also offers an island, as well as a desk area for your convenience. The family room has a vaulted ceiling with an optional fireplace and a unique second stair case leading to the second floor. The split staircase is open with railing and leads you to the second floor where the master bedroom is located. There is a large walk in closet, master bath room with double bowl sinks, whirlpool tub and stand alone shower. Bedroom #2 also has a walk in closet with ample storage. The laundry room is located on the second floor for your convenience. The second staircase is open to the family room below. There are a total of 4 bedrooms and 2 ½ baths.
