





















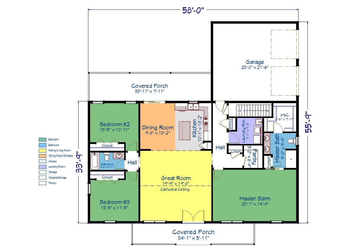
Laurelton
Farmhouse Ranch
Bedrooms: 3
Bathrooms: 2
Garage: No
Square Footage: 1,957 Sqft
$327,500
Plan Description
Experience the perfect blend of modern farmhouse charm and thoughtful design in our Farmhouse Rancher Series. A welcoming metal porch roof and sprawling front porch invite you inside, where a spacious great room with soaring cathedral ceilings creates an open and airy atmosphere. The kitchen features a large island and a cozy breakfast nook with sliding doors leading to the covered porch, seamlessly connecting indoor and outdoor living. Adjacent to the great room and kitchen, a large walk-in builder’s pantry and a conveniently located laundry room provide ample storage and functionality. A hallway off the main living area leads to the attached two-car garage for easy access. Designed with privacy in mind, the master suite is set apart from the other bedrooms and features a generous walk-in closet and a master bath with a double vanity. On the opposite side of the home, two additional bedrooms share a full bath, offering a comfortable and well-balanced layout for family or guests. With a beautiful front porch and a generous covered outdoor space, this home is designed for both relaxation and entertaining, embracing the timeless appeal of farmhouse living.
